004 Campus Universitario Lima Norte UCSUR E0
2019 - 2021
Equipo: Marta Maccaglia (socia hasta junio 2021), Jahir Velezmoro, Akemi Cabrejos, Carlos Vasquez,
Daysi La Madrid, Kelly Nuñez, Majo Chinguel, Fabio Rodriguez, Ana Lucía Díaz, Franco Ferraro, Joselín Cueto, Manuel Lonzo.
Estructuras: Equilibrio3
Especialidades: VITAL ingeniero consultores
Seguridad en edificaciones: BRACO arquitectos
Paisajismo: Eileen Dancuart
Area construida: 2,295 m2 + 5,000 m2 espacios exteriores

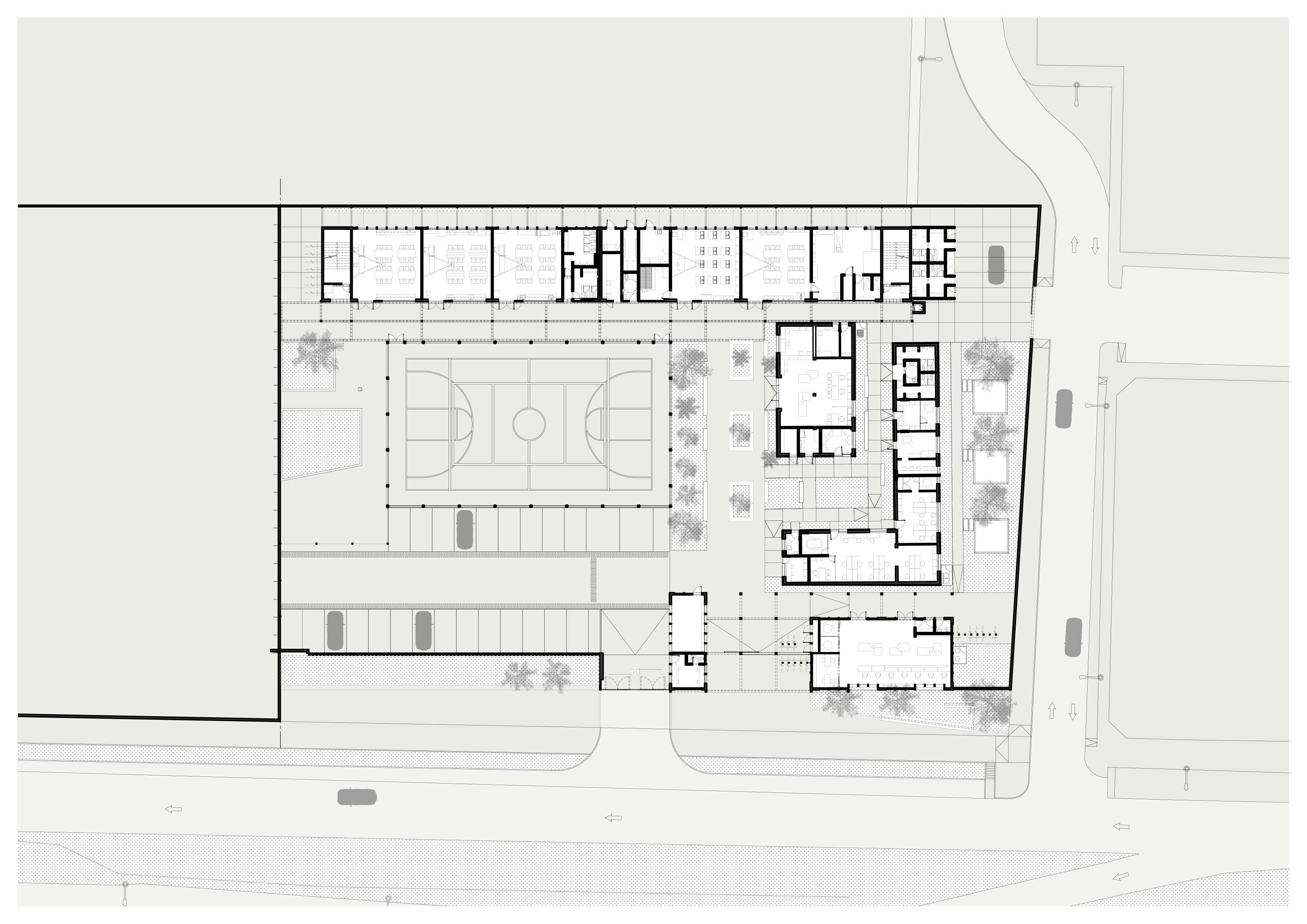
El terreno de proyecto se ubica en Lote 1 Manzana A con frente a la Avenida Alfredo Mendiola, Urbanización Puertas de Infantas, distrito de Los Olivos, provincia y departamento de Lima. El terreno tiene un área Neta de 10,920.388m2 y un perímetro de 498.47m.

El proyecto busca respetar en general la arquitectura existente de los inmuebles, integrando ampliaciones y modificaciones de distribución internas. Presenta un pabellón para aulas y laboratorios y dos edificios existentes que fueron remodelados. Adicionalmente se ha hecho un trabajo de renovación para las áreas no techadas: áreas verdes, cancha de deporte, estacionamientos, alamedas, etc. Y el frente del proyecto busca generar un aspecto más integrador hacia el contexto urbano directo.

Se propone la ampliación con una edificación de dos pisos de altura más azotea, para poder tener compatibilidad con el programa y el uso propuesto: aulas y laboratorios. El edificio cuenta con estructura de pórticos de concreto armado y tabiques ligeros de drywall. Las circulaciones hacia el lado este del edificio presentan una celosía metálica de fachada que optimiza el impacto solar y garantiza una imagen unitaria del edificio. Además, la remodelación del edificio existente, para adaptarlo al nuevo uso compatible como locales administrativos, biblioteca y servicios generales.
Para la relación con la calle y el interior del proyecto fue necesaria la demolición del cerco existente y la construcción de un nuevo cerco y pórtico, que integre las áreas de cafetería, control de ingreso, admisión y venta.



El proyecto de esta etapa 0 (remodelación) de la UCSUR trata de generar ambientes óptimos para el estudiante, brindando espacios interiores equipados con la tecnología adecuada y para su educación y que vaya de la mano con la mejor iluminación y ventilación natural posible.
Así mismo, se generan espacios libres interiores con bastantes espacios de estar que van de la mano con un trabajo de paisajístico especializado para generar sombras y además una preocupación en la variedad de las especies que generan un ambiente heterogéneo entre lo construido y lo natural.
